STRAIGHT EZ RAIL(ストレート イージー レール)
NEW LINEUP
シンプルをかなえるEZのひみつ
各パーツや手すり棒の固定には、六角棒スパナを使用。施工もサクサクすすみます。切粉のゴミが出にくいのも嬉しい。
※六角棒スパナ(呼び3mm、5mm)が別途必要です。(商品には付属しておりません)
直線を基調としながら柔らかな曲線も感じられるミニマルなデザイン。アプローチの景観を壊しません。
支柱やブラケットの数を少なく抑えられるので合計価格もお手頃に。
※ステンレス等、金属製手すりとの比較
1~2スパンなどのちょっとした現場におすすめ。
部材の拾い出しが直感的にできる、分かりやすいラインナップです。
手すり棒の直径は、手を滑らせて使う歩行補助の用途にぴったりなφ36mmを採用。
細すぎず、安心の強度です。
\こちらよりご注文いただけます!/

確かな品質
耐候性(超促進耐候性試験)
- 試験装置:超促進耐候試験機「アイスーパーUVテスター(照射強度100mW/cm2)」
- 試験結果:450時間※経過後も著しい変色や退色はありませんので、安心して屋外でもご使用になれます。
※アイスーパーUVテスターの紫外線エネルギーはサンシャイン照射試験の約7倍のエネルギー量があり、アイスーパーUVテスター照射試験450時間はサンシャイン照射試験3000時間相当のエネルギー量に相当します。
防カビ性
- 試験方法:製品を高湿度下で2週間培養。(JISZ2911に準ずる)
- 試験結果:製品にかびの発育は見られない。
強度基準
安全に配慮した試験(社内基準強度)をクリアしています。
- 安全荷重:歩行補助120kgf
- 手すり棒は定期的にやわらかい布で拭き清掃してください。汚れがひどい場合は中性洗剤をしみこませた布で拭き、その後水拭きと乾拭きを行ってください。
- 手すり棒を消毒する場合は、塩素系洗剤を濃度0.02%(500mlのペットボトル1本の水に2ml、ペットボトルキャップ半杯)以下で希釈したものを柔らかい布に含ませた後、固く絞り、洗剤が1か所に溜まらないように注意しながら手早く拭いてください。
(厚生労働省「社会福祉施設、介護老人保健施設におけるノロウイルスによる感染性胃腸炎の発生・まん延防止策の一層の徹底について」における消毒液の基準に準じます。)
動画紹介
施工事例
玄関ポーチでの使用例 その1
屋外階段での使用例
1スパンでの使用例
2スパンでの使用例
製品ラインナップ
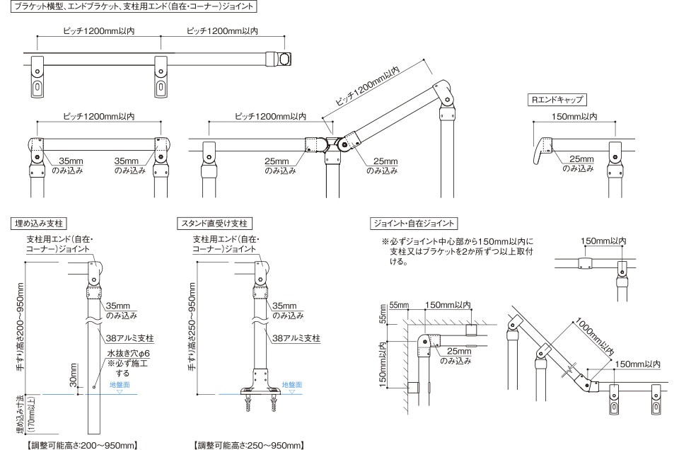
図面・現場の確認(プランニング)
下記のルールを守ってプランニングしてください。
パンフレット
マツ六は製品安全の向上に取組んでいます。
お客様、また製品をご利用になる皆様の安全・安心な暮らしのためにマツ六は様々な取組みを行なっています。意地悪試験や他社製品との比較による安全性の客観的検証と改善の取組、誤使用・誤設置防止に向けたウェブサイトや動画などによる情報発信、データベースによる問い合わせ情報の管理と開発部門も含めた社内共有などの取組みをご評価いただき、経済産業省が主催する『第16回製品安全対策優良企業表彰(PSアワード2022)』中小企業 製造事業者・輸入事業者部門に於いて、経済産業大臣賞を受賞しました。第14回(2020年度)に続き、2度目の受賞となります。今後もお客様に当社製品を安全・安心にご使用いただけるよう、社員一同尽力して参ります。
























